தமிழ்
A
+
A
-
TAHDCO
Tamil Nadu Adi Dravidar Housing & Development Corporation Ltd.
Home
About Us
Schemes
Construction
Scope
Type of Buildings Constructed
Design Specifications
IS Building codes & Material Standards
Type of Design
Rate Specifications
Schedule of Rates
Plinth Area Rates
Tender Specifications
Tender Process
Delegation of Powers – Technical Sanction Tender acceptance
Smart Performance Dashboard
Tenders
Tender Details
Tender Transparency Act
Apply Online
Contact Us
Media Corner
Press Release
Photo Gallery
Video Gallery
GO's
and Forms
FAQ
RTI
Type of Design
Home
Construction
Design Specifications
Type of Design
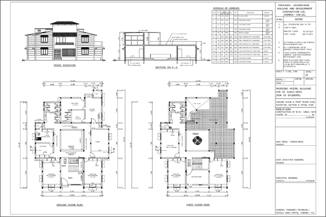
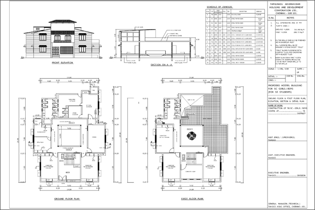
Hostel plan & Elevation
School
Two class room
Three class room
Four class II room
Five class room
Seven class room
Nine class room
Nine II class room
Ten class room
Lab:
Hr. Sec. school Lab
Lab – High School
Construction of Community Hall
Toilet – Nabard
×
More links
More links 2
More links 4
More links 5
×
×
More links
More links 2
More links 4
More links 5